Real Estate Excise Tax Affidavit Clark County . a real estate excise tax affidavit must be completed and signed by all parties involved in a real property conveyance. To report a transfer of a controlling interest in real property, please use the real estate excise tax affidavit controlling. use this worksheet to calculate state and local real estate excise tax (reet) per county, when the sale includes parcels in. real estate excise tax affidavit (reeta) chapter 82.45 rcw imposes an excise tax on every sale of real estate in this state,. use this worksheet to calculate state and local real estate excise tax (reet) per county, when the sale includes parcels in.
from www.printableaffidavitform.com
use this worksheet to calculate state and local real estate excise tax (reet) per county, when the sale includes parcels in. a real estate excise tax affidavit must be completed and signed by all parties involved in a real property conveyance. real estate excise tax affidavit (reeta) chapter 82.45 rcw imposes an excise tax on every sale of real estate in this state,. To report a transfer of a controlling interest in real property, please use the real estate excise tax affidavit controlling. use this worksheet to calculate state and local real estate excise tax (reet) per county, when the sale includes parcels in.
Real Estate Excise Tax Affidavit Form Rev 84 0001a 2022
Real Estate Excise Tax Affidavit Clark County use this worksheet to calculate state and local real estate excise tax (reet) per county, when the sale includes parcels in. use this worksheet to calculate state and local real estate excise tax (reet) per county, when the sale includes parcels in. a real estate excise tax affidavit must be completed and signed by all parties involved in a real property conveyance. use this worksheet to calculate state and local real estate excise tax (reet) per county, when the sale includes parcels in. real estate excise tax affidavit (reeta) chapter 82.45 rcw imposes an excise tax on every sale of real estate in this state,. To report a transfer of a controlling interest in real property, please use the real estate excise tax affidavit controlling.
From www.pdffiller.com
Fillable Online MOBILE HOME REAL ESTATE EXCISE TAX AFFIDAVIT Submit to Real Estate Excise Tax Affidavit Clark County use this worksheet to calculate state and local real estate excise tax (reet) per county, when the sale includes parcels in. real estate excise tax affidavit (reeta) chapter 82.45 rcw imposes an excise tax on every sale of real estate in this state,. To report a transfer of a controlling interest in real property, please use the real. Real Estate Excise Tax Affidavit Clark County.
From www.templateroller.com
Form REV84 0001BE Download Fillable PDF or Fill Online Real Estate Real Estate Excise Tax Affidavit Clark County a real estate excise tax affidavit must be completed and signed by all parties involved in a real property conveyance. real estate excise tax affidavit (reeta) chapter 82.45 rcw imposes an excise tax on every sale of real estate in this state,. use this worksheet to calculate state and local real estate excise tax (reet) per county,. Real Estate Excise Tax Affidavit Clark County.
From www.pdffiller.com
Fillable Online mobile home real estate excise tax affidavit Fax Email Real Estate Excise Tax Affidavit Clark County use this worksheet to calculate state and local real estate excise tax (reet) per county, when the sale includes parcels in. use this worksheet to calculate state and local real estate excise tax (reet) per county, when the sale includes parcels in. a real estate excise tax affidavit must be completed and signed by all parties involved. Real Estate Excise Tax Affidavit Clark County.
From www.pdffiller.com
Fillable Online Real Estate Excise Tax Affidavit Washington State Real Estate Excise Tax Affidavit Clark County use this worksheet to calculate state and local real estate excise tax (reet) per county, when the sale includes parcels in. a real estate excise tax affidavit must be completed and signed by all parties involved in a real property conveyance. To report a transfer of a controlling interest in real property, please use the real estate excise. Real Estate Excise Tax Affidavit Clark County.
From www.pdffiller.com
Affidavit Consideration Excise Tax Real Fill Online, Printable Real Estate Excise Tax Affidavit Clark County use this worksheet to calculate state and local real estate excise tax (reet) per county, when the sale includes parcels in. use this worksheet to calculate state and local real estate excise tax (reet) per county, when the sale includes parcels in. a real estate excise tax affidavit must be completed and signed by all parties involved. Real Estate Excise Tax Affidavit Clark County.
From www.templateroller.com
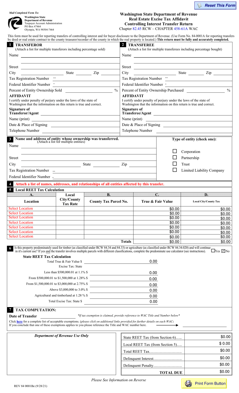
Form REV84 0001A Download Fillable PDF or Fill Online Real Estate Real Estate Excise Tax Affidavit Clark County To report a transfer of a controlling interest in real property, please use the real estate excise tax affidavit controlling. use this worksheet to calculate state and local real estate excise tax (reet) per county, when the sale includes parcels in. a real estate excise tax affidavit must be completed and signed by all parties involved in a. Real Estate Excise Tax Affidavit Clark County.
From www.pdffiller.com
Fillable Online dor wa Mobile Home Real Estate Excise Tax Affidavit Real Estate Excise Tax Affidavit Clark County use this worksheet to calculate state and local real estate excise tax (reet) per county, when the sale includes parcels in. use this worksheet to calculate state and local real estate excise tax (reet) per county, when the sale includes parcels in. To report a transfer of a controlling interest in real property, please use the real estate. Real Estate Excise Tax Affidavit Clark County.
From www.templateroller.com
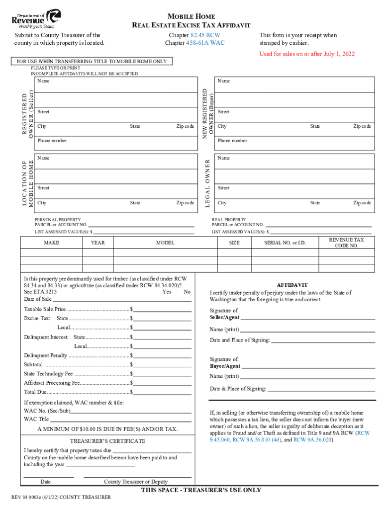
Form REV84 0003E Download Fillable PDF or Fill Online Mobile Home Real Real Estate Excise Tax Affidavit Clark County To report a transfer of a controlling interest in real property, please use the real estate excise tax affidavit controlling. real estate excise tax affidavit (reeta) chapter 82.45 rcw imposes an excise tax on every sale of real estate in this state,. use this worksheet to calculate state and local real estate excise tax (reet) per county, when. Real Estate Excise Tax Affidavit Clark County.
From issuu.com
Real estate excise tax affidavit this form is your receipt by Real Estate Excise Tax Affidavit Clark County To report a transfer of a controlling interest in real property, please use the real estate excise tax affidavit controlling. use this worksheet to calculate state and local real estate excise tax (reet) per county, when the sale includes parcels in. real estate excise tax affidavit (reeta) chapter 82.45 rcw imposes an excise tax on every sale of. Real Estate Excise Tax Affidavit Clark County.
From www.pdffiller.com
Fillable Online your kingcounty REAL ESTATE EXCISE TAX AFFIDAVIT Reset Real Estate Excise Tax Affidavit Clark County real estate excise tax affidavit (reeta) chapter 82.45 rcw imposes an excise tax on every sale of real estate in this state,. To report a transfer of a controlling interest in real property, please use the real estate excise tax affidavit controlling. use this worksheet to calculate state and local real estate excise tax (reet) per county, when. Real Estate Excise Tax Affidavit Clark County.
From www.pdffiller.com
Fillable Online REAL ESTATE EXCISE TAX AFFIDAVIT RETURN FORM 84 0001B Real Estate Excise Tax Affidavit Clark County To report a transfer of a controlling interest in real property, please use the real estate excise tax affidavit controlling. use this worksheet to calculate state and local real estate excise tax (reet) per county, when the sale includes parcels in. real estate excise tax affidavit (reeta) chapter 82.45 rcw imposes an excise tax on every sale of. Real Estate Excise Tax Affidavit Clark County.
From formspal.com
Washington Real Estate Excise Tax Affidavit [Fillable PDF] Real Estate Excise Tax Affidavit Clark County a real estate excise tax affidavit must be completed and signed by all parties involved in a real property conveyance. use this worksheet to calculate state and local real estate excise tax (reet) per county, when the sale includes parcels in. To report a transfer of a controlling interest in real property, please use the real estate excise. Real Estate Excise Tax Affidavit Clark County.
From www.affidavitform.net
Real Estate Excise Tax Affidavit Form Real Estate Excise Tax Affidavit Clark County use this worksheet to calculate state and local real estate excise tax (reet) per county, when the sale includes parcels in. a real estate excise tax affidavit must be completed and signed by all parties involved in a real property conveyance. To report a transfer of a controlling interest in real property, please use the real estate excise. Real Estate Excise Tax Affidavit Clark County.
From www.printableaffidavitform.com
Real Estate Excise Tax Affidavit Pierce County Fillable Form 2024 Real Estate Excise Tax Affidavit Clark County real estate excise tax affidavit (reeta) chapter 82.45 rcw imposes an excise tax on every sale of real estate in this state,. To report a transfer of a controlling interest in real property, please use the real estate excise tax affidavit controlling. use this worksheet to calculate state and local real estate excise tax (reet) per county, when. Real Estate Excise Tax Affidavit Clark County.
From www.pdffiller.com
Fillable Online dor wa Real Estate Excise Tax Amended Affidavit Real Estate Excise Tax Affidavit Clark County To report a transfer of a controlling interest in real property, please use the real estate excise tax affidavit controlling. a real estate excise tax affidavit must be completed and signed by all parties involved in a real property conveyance. real estate excise tax affidavit (reeta) chapter 82.45 rcw imposes an excise tax on every sale of real. Real Estate Excise Tax Affidavit Clark County.
From www.printableaffidavitform.com
Real Estate Excise Tax Affidavit Pierce County Fillable Form 2024 Real Estate Excise Tax Affidavit Clark County use this worksheet to calculate state and local real estate excise tax (reet) per county, when the sale includes parcels in. a real estate excise tax affidavit must be completed and signed by all parties involved in a real property conveyance. To report a transfer of a controlling interest in real property, please use the real estate excise. Real Estate Excise Tax Affidavit Clark County.
From www.pdffiller.com
Fillable Online Washington State Law requires that a Real Estate Excise Real Estate Excise Tax Affidavit Clark County real estate excise tax affidavit (reeta) chapter 82.45 rcw imposes an excise tax on every sale of real estate in this state,. use this worksheet to calculate state and local real estate excise tax (reet) per county, when the sale includes parcels in. To report a transfer of a controlling interest in real property, please use the real. Real Estate Excise Tax Affidavit Clark County.
From www.printableaffidavitform.com
Wa Real Estate Excise Tax Affidavit Forms 2023 Real Estate Excise Tax Affidavit Clark County To report a transfer of a controlling interest in real property, please use the real estate excise tax affidavit controlling. real estate excise tax affidavit (reeta) chapter 82.45 rcw imposes an excise tax on every sale of real estate in this state,. a real estate excise tax affidavit must be completed and signed by all parties involved in. Real Estate Excise Tax Affidavit Clark County.